²£Éͻ԰°¶èÀîÅçÄ® ¿·ÃÛ°ì¸Í·ú¤Æ 3,480Ëü±ß ¡ÊÁêÌÏÅ´Æ»ËÜÀþ/ÄᥱÊö¡Ë ¤Îʪ·ï¾ðÊó

¾ðÊó¸ø³«Æü¡§
2025ǯ10·î16Æü
¼¡²ó¹¹¿·Í½ÄêÆü¡§
2025ǯ10·î31Æü
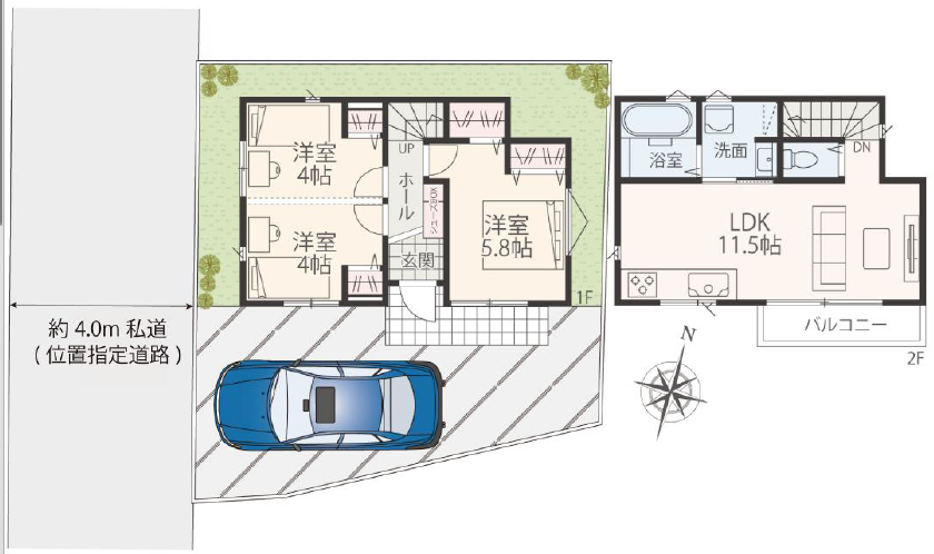
½êºßÃÏ | ²£Éͻ԰°¶èÀîÅçÄ® ²£Éͻ԰°¶èÀîÅçÄ®¿·Ã۸ͷú½»Âð | ||
---|---|---|---|
¥¢¥¯¥»¥¹ | ÁêÌÏÅ´Æ»ËÜÀþÄᥱÊö±ØÅÌÊâ17ʬ | ||
¥¢¥¯¥»¥¹£² | ÁêÌÏÅ´Æ»ËÜÀþÆóËóÀî±ØÅÌÊâ21ʬ | ||
²Á³Ê¡ÊÀǹþ¡Ë | 3,480Ëü±ß | ![]() | 2LDK |
ÌÌÀÑ¡ÊÊ¿ÊÆ¡Ë | ÅÚÃÏ¡§76.52¡¡·úʪ¡§60.65¡¡ | ![]() | ·ú¤Ú¤¤Î¨¡§50¡ó¡¡ÍÆÀÑΨ¡§80¡ó |
![]() | 2025ǯ11·î | ![]() | Í |
![]() |
°ìÊý ¡ÊÀ¾ 4m »äÆ»¡Ë |
||
![]() | ÌÚ¤ | ³¬¿ô | 2³¬·ú¤Æ |
![]() | - | ![]() | ÁêÃÌ |
![]() | »Ô³¹²½¶è°è | ![]() | Âè°ì¼ïÄãÁؽ»µïÀìÍÑ |
![]() | - | ![]() | ÇÞ²ð |
![]() | ½ê͸¢ | ![]() | ÂðÃÏ |
![]() | ÉÔÍ× | ![]() | |
![]() | ![]() | ||
![]() | ÍÛÅö¤êÎɹ¥¡¿Á´¼¼2Ì̺θ÷¡¿Æî¸þ¤¡¿Íá¼¼´¥Á絡¡¿µëÅò¡¿³Æ¼¼¼ýǼ¥¹¥Ú¡¼¥¹¡¿¥·¥¹¥Æ¥à¥¥Ã¥Á¥ó¡¿¿©´ïÀöµ¡¡¿¥·¥ã¥ï¡¼¡¿¥Ð¥¹¥È¥¤¥ìÊÌ¡¿Àö¾ôÊØºÂ¡¿Á´¼¼¥Õ¥í¡¼¥ê¥ó¥°¡¿¾ô¿å´ï¡¿¥Ñ¥¦¥À¡¼¥ë¡¼¥à¡¿µ·¿¥¥Ã¥Á¥ó¡¿¥Ð¥ë¥³¥Ë¡¼¡¿¥Ú¥¢¥¬¥é¥¹ | ||
È÷¹Í | ·úÃÛ³ÎǧÈÖ¹æ:Âè£Ë£Â£É¡Ý£Ù£Ë£È£²£µ¡Ý£±£°¡Ý£±£¶£µ£¸ | ||
ÅÅÏÃÈÖ¹æ | 045-227-3220 | ʪ·ïÈÖ¹æ | r13735629 |
ʪ·ï¹¹¿·Æü | 2025-10-10 |
¥í¡¼¥ó¥·¥ß¥å¥ì¡¼¥·¥ç¥ó

²£Éͻ԰°¶èÀîÅçÄ® ¿·ÃÛ°ì¸Í·ú¤Æ 3,480Ëü±ß¡ÊÁêÌÏÅ´Æ»ËÜÀþ/ÄᥱÊö¡Ë¤Îʪ·ï¼þÊÕÃÏ¿Þ
¤³¤Îʪ·ï¤ò¸«¤¿Êý¤Ï¡¢¤³¤Á¤é¤Îʪ·ï¤â¸«¤Æ¤¤¤Þ¤¹
ºÆ·úÃۤκݤÏSB¤¬É¬Íפʾì¹ç¤¬¤¢¤ê¤Þ¤¹¡£¤Þ¤¿¡¢¤è¤¦ÊÉÅù¤Î¤ä¤êľ¤·¤¬É¬Íפʾì¹ç¤¬¤¢¤ê¤Þ¤¹¡£¢¡ÆîÀ¾Â¦¤¬¾ã... | ||||||||||||||||||||||
---|---|---|---|---|---|---|---|---|---|---|---|---|---|---|---|---|---|---|---|---|---|---|
Ãæ¸Å°ì¸Í·ú¤Æ
²£ÉÍ»ÔÊÝÅÚ¥±Ã«¶è¾å¿ûÅÄÄ® Ãæ¸Å°ì¸Í·ú¤Æ 2,980Ëü±ß
![]()
|
ºÆ·úÃۤκݤÏSB¤¬É¬Íפʾì¹ç¤¬¤¢¤ê¤Þ¤¹¡£¤Þ¤¿¡¢¤è¤¦ÊÉÅù¤Î¤ä¤êľ¤·¤¬É¬Íפʾì¹ç¤¬¤¢¤ê¤Þ¤¹¡£¢¡LDK¡¢2³¬ÍÎ... | ||||||||||||||||||||||
---|---|---|---|---|---|---|---|---|---|---|---|---|---|---|---|---|---|---|---|---|---|---|
Ãæ¸Å°ì¸Í·ú¤Æ
²£Éͻ԰°¶èÅÔ²¬Ä® Ãæ¸Å°ì¸Í·ú¤Æ 2,390Ëü±ß
7/27
|
ºÆ·úÃۤκݤÏSB¤¬É¬Íפʾì¹ç¤¬¤¢¤ê¤Þ¤¹¡£¤Þ¤¿¡¢¤è¤¦ÊÉÅù¤Î¤ä¤êľ¤·¤¬É¬Íפʾì¹ç¤¬¤¢¤ê¤Þ¤¹¡£¢¡¥Ð¥¹Ää¤Þ¤Ç... | ||||||||||||||||||||||
---|---|---|---|---|---|---|---|---|---|---|---|---|---|---|---|---|---|---|---|---|---|---|
Ãæ¸Å°ì¸Í·ú¤Æ
²£Éͻ԰°¶è¾åÇòº¬Ä® Ãæ¸Å°ì¸Í·ú¤Æ 3,280Ëü±ß
9/1
|
![]() |
![]() |
ºÆ·úÃۤκݤÏSB¤¬É¬Íפʾì¹ç¤¬¤¢¤ê¤Þ¤¹¡£¤Þ¤¿¡¢¤è¤¦ÊÉÅù¤Î¤ä¤êľ¤·¤¬É¬Íפʾì¹ç¤¬¤¢¤ê¤Þ¤¹¡£¢¡ÆîÀÜÆ»¤Î³«... | ||||||||||||||||||||||
---|---|---|---|---|---|---|---|---|---|---|---|---|---|---|---|---|---|---|---|---|---|---|
Ãæ¸Å°ì¸Í·ú¤Æ
²£Éͻ԰°¶èÁ±ÉôÄ® Ãæ¸Å°ì¸Í·ú¤Æ 4,880Ëü±ß
9/6
|
¿·ÃÛ°ì¸Í·ú¤Æ
²£Éͻ԰°¶èÇòº¬£²ÃúÌÜ ¿·ÃÛ°ì¸Í·ú¤Æ 4,680Ëü±ß
8/2
|
¿·ÃÛ°ì¸Í·ú¤Æ
²£Éͻ԰°¶èÇòº¬£²ÃúÌÜ ¿·ÃÛ°ì¸Í·ú¤Æ 4,980Ëü±ß
8/2
|
![]() |
![]() |
![]() |
![]() |
¿·ÃÛ°ì¸Í·ú¤Æ
²£Éͻ԰°¶èÁ±ÉôÄ® ¿·ÃÛ°ì¸Í·ú¤Æ 3,780Ëü±ß
8/10
|
ºÆ·úÃۤκݤÏSB¤¬É¬Íפʾì¹ç¤¬¤¢¤ê¤Þ¤¹¡£¤Þ¤¿¡¢¤è¤¦ÊÉÅù¤Î¤ä¤êľ¤·¤¬É¬Íפʾì¹ç¤¬¤¢¤ê¤Þ¤¹¡£ ¤´¤ßÃÖ¤¾ì... | ||||||||||||||||||||||
---|---|---|---|---|---|---|---|---|---|---|---|---|---|---|---|---|---|---|---|---|---|---|
Ãæ¸Å°ì¸Í·ú¤Æ
²£ÉÍ»ÔÊÝÅÚ¥±Ã«¶èÅìÀîÅçÄ® Ãæ¸Å°ì¸Í·ú¤Æ 4,480Ëü±ß
![]()
|
![]() |
¿·ÃÛ°ì¸Í·ú¤Æ
²£Éͻ԰°¶èÁ±ÉôÄ® ¿·ÃÛ°ì¸Í·ú¤Æ 4,580Ëü±ß
9/12
|
![]() |
![]() |
![]() |
¡Ö²£ÉÍ¡¦Àîºê¤ÎºÇ¿·Êª·ï¾ðÊó¤Ë¾Ü¤·¤¤¤Ç¤¹¡× ¡ÖFPÁêÃ̤ΤߤǤΤ´ÍèŹ¤â¤ª¼õ¤±¤·¤Æ¤ª¤ê¤Þ¤¹¡£¡×¢¡Á´Å﹡¹4... | ||||||||||||||||||||||
---|---|---|---|---|---|---|---|---|---|---|---|---|---|---|---|---|---|---|---|---|---|---|
¿·ÃÛ°ì¸Í·ú¤Æ
²£ÉÍ»ÔÊÝÅÚ¥±Ã«¶èÊ©¸þÀ¾ ¿·ÃÛ°ì¸Í·ú¤Æ 4,280Ëü±ß
6/20
|
¥á¥ê¥Ã¥È
1
°ìÈ̤ÎÊý¤Ë¤Ï¸ø³«¤Ç¤¤Ê¤¤
²ñ°÷¸ÂÄêʪ·ï¾ðÊó¤ò±ÜÍ÷²Äǽ¤Ë
ʪ·ï¤òõ¤¹ºÝ¡¢ÉÔÆ°»º¥Ý¡¼¥¿¥ë¥µ¥¤¥È¤òÍøÍѤµ¤ì¤ëÊý¤Ï¿¤¤¤È»×¤¤¤Þ¤¹¡£
ÉÔÆ°»º¥Ý¡¼¥¿¥ë¥µ¥¤¥È¤Ë¤Ï¡¢¤´¤¯°ìÉô¤Îʪ·ï¤·¤«·ÇºÜ¤Ç¤¤Ê¤¤»ÅÁȤߤˤʤäƤ¤¤ë¤Î¤Ï¤´Â¸ÃΤǤ¹¤«¡©
À¤¤ÎÃæ¤Ë¤Ï¾ðÊó¼è¤ê°·¤¤µ¬Â§Åù¡¢¤µ¤Þ¤¶¤Þ¤ÊÍýͳ¤Ë¤è¤ê°ìÈ̸ø³«¤Ç¤¤Ê¤¤Êª·ï¤È¤¤¤¦¤â¤Î¤¬Â¸ºß¤·¤Þ¤¹¡£
ÊÀ¼Ò¤Ç¤Ï²ñ°÷ÅÐÏ¿¤·¤Æ¤¤¤¿¤À¤¯¤³¤È¤Ç¡¢¤³¤Á¤é¤Îµ®½Å¤Ê²ñ°÷¸ÂÄêʪ·ï¤ò±ÜÍ÷¤Ç¤¤ë¥æ¡¼¥¶¡¼ID¡¦¥Ñ¥¹¥ï¡¼¥É¤Îȯ¹Ô¤ò¹Ô¤Ã¤Æ¤ª¤ê¤Þ¤¹¡£

²ñ°÷¸ÂÄêʪ·ï¤È¤Ï
-
- 1¹¹ð¤Ë·ÇºÜ¤Ç¤¤Ê¤¤Êª·ï
- ¡ÖÉÔÆÃÄê¿¿ô¤Ë¸«¤é¤ì¤ë¤Î¤¬·ù¡×¡Ö¸½ÃϼþÊդ˿ͤ¬½¸¤Þ¤ë¤Î¤¬·ù¡×Åù¡¢Çä¼çÍͤΤ´ÅÔ¹ç¤Ë¤è¤ê¹¹ð·ÇºÜµö²Ä¤Î²¼¤ê¤Æ¤¤¤Ê¤¤Êª·ï
-
- 2¹¹ð·ÇºÜ¤Ê¤·¤ÇÇä¤ì¤ëʪ·ï
- ¤ï¤¶¤ï¤¶¹¹ð·ÇºÜ¤·¤Ê¤¯¤Æ¤â¡¢¤¹¤°¤ËÇä¤ì¤Æ¤·¤Þ¤¦¿Íµ¤¤Î¤¢¤ëʪ·ï¤ä¤ªÇ㤤ÆÀ¤Êʪ·ï
-
- 3ÃͲ¼¤²¤·¤Æ¤¤¤ë(ͽÄê)ʪ·ï
- Çä¼çÍͤ«¤éÆâ¡¹¤ÇÃͲ¼¤²¾ðÊó¤ò¶µ¤¨¤ÆÄº¤¤¤Æ¤¤¤ëʪ·ï
-
- 4ÈÎÇäͽÄê¤Îʪ·ï
- ¤³¤ì¤«¤éÈÎÇä¤ò³«»Ï¤¹¤ëʪ·ï¤Ç¡¢¤Þ¤À²Á³Ê¤Ê¤É¤Î¾ÜºÙ¤¬·è¤Þ¤Ã¤Æ¤¤¤Ê¤¤Êª·ï
-
- 5ÈÎÇ䳫»Ï¤·¤Æ´Ö¤â¤Ê¤¤Êª·ï
- ÉÔÆ°»º¥Ý¡¼¥¿¥ë¥µ¥¤¥È¤Ë¤Þ¤À¹¹ð·ÇºÜ¤¬´Ö¤Ë¹ç¤Ã¤Æ¤¤¤Ê¤¤¡¢¤³¤ì¤«¤é·ÇºÜͽÄê¤Îʪ·ï
²ñ°÷¸ÂÄêʪ·ï¤Î¥á¥ê¥Ã¥È¤È¤Ï
-
- 1¶¥ÁèΨ¤ÎÄ㤵
- µ¤¤ËÆþ¤Ã¤¿Êª·ï¤¬´û¤ËÀ®ÌóºÑ¤ß¤À¤Ã¤¿¤È¤¤¤¦¤³¤È¤Ï¤è¤¯¤¢¤ëÏäǤ¹¡£¤·¤«¤·¡¢²ñ°÷¸ÂÄêʪ·ï¾ðÊó¤Ê¤é¡¢Êª·ï¤ò¤ªÃµ¤·¤Ë¤Ê¤Ã¤Æ¤¤¤ëÊÀ¼Ò¤Î¤ªµÒÍͤˤ¤¤ÁÁ᤯¿·Á¯¤Ê¾ðÊó¤ò¤ªÆÏ¤±¤·¡¢¶¥ÁèΨ¤ÎÄ㤤¾õÂ֤Ǥ´¸¡Æ¤Äº¤±¤Þ¤¹¡£
-
- 2¥»¥ß¥ª¡¼¥À¡¼´¶³Ð¤Ë
- Èæ³ÓŪ¡¢¹¹ÃϤξõÂ֤Ǥ¢¤ë¸½ÃϤ¬Â¿¤¤°Ù¡¢¥Õ¥ê¡¼¥×¥é¥óÂбþ¤ä´Ö¼è¤ê¤ÎÊѹ¹¡¢ÁǺà¤ä¿§¤ÎÁªÄê¤Ê¤É¥»¥ß¥ª¡¼¥À¡¼´¶³Ð¤Îʪ·ï¾ðÊó¤â¿¤¯´Þ¤Þ¤ì¤Æ¤¤¤ë°Ù¡¢²È¤¤ê¤Î³Ú¤·¤ß¤Î¾¡¢·úÃÛ¹ÔÄø¤â¤ªµÒÍͤÎÌܤǤ´³Îǧ失¤Þ¤¹¡£
-
- 3¤ª¹¥¤ß¤Î¶è²è¤òÁª¤Ù¤ë
- ¿Å︽¾ì¤Îʪ·ï¤Î¾ì¹ç¤Ë¤Ï¡¢¾ðÊó¤¬Áᤤ¤Û¤É¤ª¹¥¤ß¤Î¶è²è¤òÁª¤ó¤Ç¤¤¤¿¤À¤±¤ë²ÄǽÀ¤¬¹â¤Þ¤ê¤Þ¤¹¡£
²ñ°÷ÅÐÏ¿¤ò¤·¤Æ¥á¥ê¥Ã¥ÈËþºÜ¤Î²ñ°÷¸ÂÄêʪ·ï¾ðÊó¤òÆþ¼ê¤·¤Þ¤·¤ç¤¦
¥á¥ê¥Ã¥È
2
ÃͲ¼¤²Êª·ï¡¢´Ö¼è¤ê¿Þ¡¦¼Ì¿¿¤Ê¤É
ÆÃÊ̾ðÊó¤ò¨ºÂ¤Ë¤ªÆÏ¤±¡ª
ÃͲ¼¤²Êª·ï¡¢´Ö¼è¤ê¿Þ¡¦¼Ì¿¿¤Ê¤ÉÆÃÊ̾ðÊó¤ò¨ºÂ¤Ë¤ªÆÏ¤±¡ª
¤´´õ˾¤Îʪ·ï¾ðÊó¤òÅÐÏ¿¤·¤Æ¤¤¤¿¤À¤¤¤¿²ñ°÷¤ÎÊý¤Ë¡¢¾ò·ï¤Ë¥Þ¥Ã¥Á¤¹¤ë¿·µ¬Êª·ï¤¬ÅÐÏ¿¤µ¤ì¤¿ºÝ¤Ë¥á¡¼¥ë¤Ç¤ªÃΤ餻¤¹¤ë¥·¥¹¥Æ¥à¤Ç¤¹¡£
¤Þ¤¿ÃͲ¼¤²Êª·ï¡¢¥í¡¼¥ó¥¥ã¥ó¥»¥ë¤Îʪ·ï¡¢¿ÞÌÌ¡¦¼Ì¿¿¤Ê¤É¡¢ÆÃÊ̤ʾðÊó¤â¨ºÂ¤Ë¤ªÅÁ¤¨Ãפ·¤Þ¤¹¡£

¥á¥ê¥Ã¥È
3
ʪ·ï´ÊñÌä¹ç¤ï¤»
ÌÌÅÝ¤ÊÆþÎϺî¶È¤ò¤¹¤Ù¤Æ¾Êά
½»½ê¤äÅÅÏÃÈÖ¹æ¤òÅÐÏ¿¤·¤Æ¤ª¤±¤Ð¡¢¤ªÌä¹ç¤ï¤»¤ÎºÝ¤ËÌÌÅÝ¤ÊÆþÎϺî¶È¤ò¾Êά¤¹¤ë¤³¤È¤¬¤Ç¤¤Þ¤¹¡£
¤¢¤ï¤»¤Æ´õ˾¾ò·ï¤òÆþÎϤ·¤Æ¤¤¤¿¤À¤±¤ì¤Ð¡¢»öÁ°¤Ë¤¢¤Ê¤¿¤Î¤´´õ˾¤òÇİ®¤·¤¿¾å¤Ç¡¢¤´Ï¢Íí¤ò¤µ¤»¤ÆÄº¤¤Þ¤¹¡£

¥á¥ê¥Ã¥È
4
¥Þ¥¤¥Ú¡¼¥¸µ¡Ç½¤Î¤´ÍøÍÑ
¤´´õ˾¾ò·ï¤ÎÅÐÏ¿¤Ç¡¢¤´´õ˾¤Ë¥Þ¥Ã¥Á¤¹¤ëʪ·ï¿ô¤ò½Ö»þ¤Ëɽ¼¨
¥Þ¥¤¥Ú¡¼¥¸¤Ç¤Ï¡¢¤ªµÒÍͤΤªÃµ¤·Êª·ï¾ò·ï¤òÅÐÏ¿¤·¤Æ¤ª¤¯¤³¤È¤¬¤Ç¤¤Þ¤¹¡£
¾ò·ï¤òÊѹ¹¤¹¤ë¤È¥ê¥¢¥ë¥¿¥¤¥à¤Ç½Ö»þ¤Ë³ºÅöʪ·ï¿ô¤¬É½¼¨¤µ¤ì¡¢°ìÍ÷ɽ¼¨¤â´Êñ¤Ç¤¹¡£
¤Þ¤¿¡¢²áµî¤Ë±ÜÍ÷¡¦¤ªÌä¹ç¤ï¤»¤·¤¿Êª·ï¾ðÊó¤ò±ÜÍ÷¡¦´ÉÍý¤¹¤ë¤³¤È¤¬¤Ç¤¤Þ¤¹¡£

²ñ°÷ÅÐÏ¿¤ò¤·¤ÆÍýÁۤΥޥ¤¥Û¡¼¥àÀ¸³è¤Ë°ìÊâ¶á¤Å¤¤Þ¤·¤ç¤¦
¢¡¥«¡¼¥¹¥Ú¡¼¥¹1Âæ´°È÷¢öÁ´µï¼¼¼ýǼ´°È÷¢ö
¢¡2³¬¤Ï¡¢8Ä¡1Éô²°or4Ä¡2Éô²°¤È¤·¤Æ»È¤¤Ê¬¤±²Äǽ¢ö
Ãó¼Ö²ÄÇ½Âæ¿ô¡§1