横浜市保土ケ谷区上菅田町 新築一戸建て 4,780万円 (相模鉄道本線/西谷) の物件情報

情報公開日:
2025年10月16日
次回更新予定日:
2025年10月31日
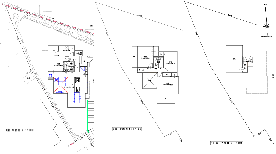
所在地 | 横浜市保土ケ谷区上菅田町 横浜市保土ケ谷区上菅田町新築戸建分譲住宅 | ||
---|---|---|---|
アクセス | 相模鉄道本線西谷駅徒歩19分 | ||
価格(税込) | 4,780万円 | ![]() | 4LDK |
面積(平米) | 土地:150.74 建物:103.63 | ![]() | 建ぺい率:40% 容積率:80% |
![]() | - | ![]() | 有 |
![]() |
一方 (南東 4.5m 公道) |
||
![]() | 木造 | 階数 | 2階建て |
![]() | 空家 | ![]() | 予定 2026年05月 |
![]() | 市街化区域 | ![]() | 第一種低層住居専用 |
![]() | - | ![]() | 媒介 |
![]() | 所有権 | ![]() | |
![]() | 不要 | ![]() | |
![]() | ![]() | ||
![]() | 陽当り良好/各室収納スペース/バストイレ別/LDK15帖以上/バルコニー/ルーフバルコニー | ||
備考 | |||
電話番号 | 045-227-3220 | 物件番号 | r13738521 |
物件更新日 | 2025-10-06 |
ローンシミュレーション

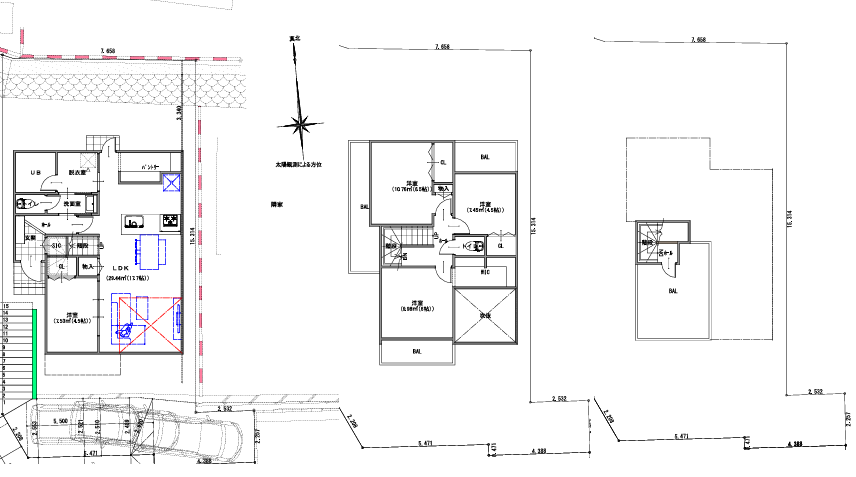
横浜市保土ケ谷区上菅田町 新築一戸建て 4,780万円(相模鉄道本線/西谷)の物件周辺地図
この物件を見た方は、こちらの物件も見ています
再建築の際はSBが必要な場合があります。また、よう壁等のやり直しが必要な場合があります。◆南西側が障... | ||||||||||||||||||||||
---|---|---|---|---|---|---|---|---|---|---|---|---|---|---|---|---|---|---|---|---|---|---|
中古一戸建て
横浜市保土ケ谷区上菅田町 中古一戸建て 2,980万円
![]()
|
再建築の際はSBが必要な場合があります。また、よう壁等のやり直しが必要な場合があります。◆バス停まで... | ||||||||||||||||||||||
---|---|---|---|---|---|---|---|---|---|---|---|---|---|---|---|---|---|---|---|---|---|---|
中古一戸建て
横浜市旭区上白根町 中古一戸建て 3,280万円
9/1
|
![]() |
![]() |
新築一戸建て
横浜市旭区白根2丁目 新築一戸建て 4,680万円
8/2
|
新築一戸建て
横浜市旭区白根2丁目 新築一戸建て 4,980万円
8/2
|
![]() |
![]() |
![]() |
新築一戸建て
横浜市保土ケ谷区常盤台 新築一戸建て 6,080万円
4/14
|
新築一戸建て
横浜市保土ケ谷区常盤台 新築一戸建て 6,080万円
4/14
|
再建築の際はSBが必要な場合があります。また、よう壁等のやり直しが必要な場合があります。 ごみ置き場... | ||||||||||||||||||||||
---|---|---|---|---|---|---|---|---|---|---|---|---|---|---|---|---|---|---|---|---|---|---|
中古一戸建て
横浜市保土ケ谷区東川島町 中古一戸建て 4,480万円
![]()
|
![]() |
![]() |
![]() |
![]() |
「横浜・川崎の最新物件情報に詳しいです」 「FP相談のみでのご来店もお受けしております。」◆全棟広々4... | ||||||||||||||||||||||
---|---|---|---|---|---|---|---|---|---|---|---|---|---|---|---|---|---|---|---|---|---|---|
新築一戸建て
横浜市保土ケ谷区仏向西 新築一戸建て 4,280万円
6/20
|
新築一戸建て
横浜市保土ケ谷区仏向西 新築一戸建て 4,780万円
9/8
|
新築一戸建て
横浜市保土ケ谷区仏向西 新築一戸建て 4,280万円
![]()
|
![]() |
メリット
1
一般の方には公開できない
会員限定物件情報を閲覧可能に
物件を探す際、不動産ポータルサイトを利用される方は多いと思います。
不動産ポータルサイトには、ごく一部の物件しか掲載できない仕組みになっているのはご存知ですか?
世の中には情報取り扱い規則等、さまざまな理由により一般公開できない物件というものが存在します。
弊社では会員登録していただくことで、こちらの貴重な会員限定物件を閲覧できるユーザーID・パスワードの発行を行っております。

会員限定物件とは
-
- 1広告に掲載できない物件
- 「不特定多数に見られるのが嫌」「現地周辺に人が集まるのが嫌」等、売主様のご都合により広告掲載許可の下りていない物件
-
- 2広告掲載なしで売れる物件
- わざわざ広告掲載しなくても、すぐに売れてしまう人気のある物件やお買い得な物件
-
- 3値下げしている(予定)物件
- 売主様から内々で値下げ情報を教えて頂いている物件
-
- 4販売予定の物件
- これから販売を開始する物件で、まだ価格などの詳細が決まっていない物件
-
- 5販売開始して間もない物件
- 不動産ポータルサイトにまだ広告掲載が間に合っていない、これから掲載予定の物件
会員限定物件のメリットとは
-
- 1競争率の低さ
- 気に入った物件が既に成約済みだったということはよくある話です。しかし、会員限定物件情報なら、物件をお探しになっている弊社のお客様にいち早く新鮮な情報をお届けし、競争率の低い状態でご検討頂けます。
-
- 2セミオーダー感覚に
- 比較的、更地の状態である現地が多い為、フリープラン対応や間取りの変更、素材や色の選定などセミオーダー感覚の物件情報も多く含まれている為、家造りの楽しみの他、建築行程もお客様の目でご確認頂けます。
-
- 3お好みの区画を選べる
- 多棟現場の物件の場合には、情報が早いほどお好みの区画を選んでいただける可能性が高まります。
会員登録をしてメリット満載の会員限定物件情報を入手しましょう
メリット
2
値下げ物件、間取り図・写真など
特別情報を即座にお届け!
値下げ物件、間取り図・写真など特別情報を即座にお届け!
ご希望の物件情報を登録していただいた会員の方に、条件にマッチする新規物件が登録された際にメールでお知らせするシステムです。
また値下げ物件、ローンキャンセルの物件、図面・写真など、特別な情報も即座にお伝え致します。

メリット
3
物件簡単問合わせ
面倒な入力作業をすべて省略
住所や電話番号を登録しておけば、お問合わせの際に面倒な入力作業を省略することができます。
あわせて希望条件を入力していただければ、事前にあなたのご希望を把握した上で、ご連絡をさせて頂きます。

メリット
4
マイページ機能のご利用
ご希望条件の登録で、ご希望にマッチする物件数を瞬時に表示
マイページでは、お客様のお探し物件条件を登録しておくことができます。
条件を変更するとリアルタイムで瞬時に該当物件数が表示され、一覧表示も簡単です。
また、過去に閲覧・お問合わせした物件情報を閲覧・管理することができます。

会員登録をして理想のマイホーム生活に一歩近づきましょう