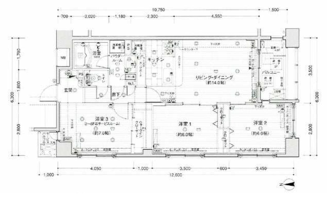
ラ・アトレ横濱鶴見II 3,780万円(JR京浜東北線/鶴見)の物件情報
こちらの物件は掲載終了物件ですが
同条件の物件は半年以内に16件売りに出ています。
|
※同条件 (JR京浜東北線 鶴見駅 3,000万円台 専有面積70~80m²) 物件件数
|
| 成約年月 |
これから3ヶ月以内にでる可能性は高いでしょう!
同条件の物件価格は半年でわずかに下降傾向にあります
|
※同条件 (JR京浜東北線 鶴見駅 3,000万円台 専有面積70~80m²) 単価(万円/m²)
|
| 成約年月 |

横浜市鶴見区 中古マンション をお探しなら こちらの特集もおすすめです
現在こんな物件もご紹介中です
| ◆最上階3方向角部屋につき、日当たり・風通し良好♪ ◆2路線利用可能な鶴見駅から徒歩13分の好立地!♪ ◆洋... | ||||||||||||||||||||||
|---|---|---|---|---|---|---|---|---|---|---|---|---|---|---|---|---|---|---|---|---|---|---|
|
中古マンション
オーベル鶴見中央
12/26
|
||||||||||||||||||||||
|
|
|
| ◆「新子安」駅徒歩3分の好立地♪ ◆南向きのお部屋の為リビング陽当たり良好です♪ ◆3LDK、使いやすいファ... | ||||||||||||||||||||||
|---|---|---|---|---|---|---|---|---|---|---|---|---|---|---|---|---|---|---|---|---|---|---|
|
中古マンション
クレストフォルム横浜グランステージ
2/14
|
||||||||||||||||||||||
|
|
| ◆バス便充実!スーパーも徒歩圏内にある好立地♪ ◆3階の南東向きにつき日当たり、風通し良好♪ ◆大切な家... | ||||||||||||||||||||||
|---|---|---|---|---|---|---|---|---|---|---|---|---|---|---|---|---|---|---|---|---|---|---|
|
中古マンション
ナイスステージ北寺尾
2/5
|
||||||||||||||||||||||
| ◆京浜東北・京急線が利用可能な「鶴見駅」へ徒歩5分♪ ◆人気の対面キッチン仕様♪各居室収納完備で豊富な... | ||||||||||||||||||||||
|---|---|---|---|---|---|---|---|---|---|---|---|---|---|---|---|---|---|---|---|---|---|---|
|
中古マンション
ニックハイム鶴見渡辺ビル第1
1/31
|
||||||||||||||||||||||
|
|
|

メリット
1
一般の方には公開できない
会員限定物件情報を閲覧可能に
物件を探す際、不動産ポータルサイトを利用される方は多いと思います。
不動産ポータルサイトには、ごく一部の物件しか掲載できない仕組みになっているのはご存知ですか?
世の中には情報取り扱い規則等、さまざまな理由により一般公開できない物件というものが存在します。
弊社では会員登録していただくことで、こちらの貴重な会員限定物件を閲覧できるユーザーID・パスワードの発行を行っております。
会員限定物件とは
-
- 1広告に掲載できない物件
- 「不特定多数に見られるのが嫌」「現地周辺に人が集まるのが嫌」等、売主様のご都合により広告掲載許可の下りていない物件

-
- 2広告掲載なしで売れる物件
- わざわざ広告掲載しなくても、すぐに売れてしまう人気のある物件やお買い得な物件

-
- 3値下げしている(予定)物件
- 売主様から内々で値下げ情報を教えて頂いている物件

-
- 4販売予定の物件
- これから販売を開始する物件で、まだ価格などの詳細が決まっていない物件

-
- 5販売開始して間もない物件
- 不動産ポータルサイトにまだ広告掲載が間に合っていない、これから掲載予定の物件

会員限定物件のメリットとは
-
- 1競争率の低さ
- 気に入った物件が既に成約済みだったということはよくある話です。しかし、会員限定物件情報なら、物件をお探しになっている弊社のお客様にいち早く新鮮な情報をお届けし、競争率の低い状態でご検討頂けます。

-
- 2セミオーダー感覚に
- 比較的、更地の状態である現地が多い為、フリープラン対応や間取りの変更、素材や色の選定などセミオーダー感覚の物件情報も多く含まれている為、家造りの楽しみの他、建築行程もお客様の目でご確認頂けます。

-
- 3お好みの区画を選べる
- 多棟現場の物件の場合には、情報が早いほどお好みの区画を選んでいただける可能性が高まります。

会員登録をしてメリット満載の会員限定物件情報を入手しましょう
メリット
2
値下げ物件、間取り図・写真など
特別情報を即座にお届け!
値下げ物件、間取り図・写真など特別情報を即座にお届け!
ご希望の物件情報を登録していただいた会員の方に、条件にマッチする新規物件が登録された際にメールでお知らせするシステムです。
また値下げ物件、ローンキャンセルの物件、図面・写真など、特別な情報も即座にお伝え致します。
メリット
3
物件簡単問合わせ
面倒な入力作業をすべて省略
住所や電話番号を登録しておけば、お問合わせの際に面倒な入力作業を省略することができます。
あわせて希望条件を入力していただければ、事前にあなたのご希望を把握した上で、ご連絡をさせて頂きます。
メリット
4
マイページ機能のご利用
ご希望条件の登録で、ご希望にマッチする物件数を瞬時に表示
マイページでは、お客様のお探し物件条件を登録しておくことができます。
条件を変更するとリアルタイムで瞬時に該当物件数が表示され、一覧表示も簡単です。
また、過去に閲覧・お問合わせした物件情報を閲覧・管理することができます。
会員登録をして理想のマイホーム生活に一歩近づきましょう

2/14













