ディアスタ梶ケ谷ヒルズ

[ディアスタ梶ケ谷ヒルズ]
所在地 川崎市宮前区梶ケ谷
建物名 ディアスタ梶ケ谷ヒルズ
アクセス 東急田園都市線梶が谷駅徒歩17分
階高 総戸数
築年月2017年03月 建物構造
管理形態 管理人状況
管理会社 施主/施工
土地権利 用途地域準住居
都市計画

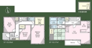
ディアスタ梶ケ谷ヒルズの概要

ディアスタ梶ケ谷ヒルズは、川崎市宮前区梶ケ谷に
2017年03月完成した中古マンションです。
アクセスは、東急田園都市線梶が谷駅徒歩17分となっています。
ご覧頂きありがとうございます。

ディアスタ梶ケ谷ヒルズ(川崎市宮前区梶ケ谷)の物件周辺地図

ディアスタ梶ケ谷ヒルズ 周辺の物件

0件見つかりました!

会員登録をすることによって得られるメリットをご紹介

メリット
1
一般の方には公開できない
会員限定物件情報を閲覧可能に

物件を探す際、不動産ポータルサイトを利用される方は多いと思います。
不動産ポータルサイトには、ごく一部の物件しか掲載できない仕組みになっているのはご存知ですか?
世の中には情報取り扱い規則等、さまざまな理由により一般公開できない物件というものが存在します。
弊社では会員登録していただくことで、こちらの貴重な会員限定物件を閲覧できるユーザーID・パスワードの発行を行っております。

会員限定物件とは? そのメリットとは?

会員限定物件とは

  • 1広告に掲載できない物件
    「不特定多数に見られるのが嫌」「現地周辺に人が集まるのが嫌」等、売主様のご都合により広告掲載許可の下りていない物件
  • 2広告掲載なしで売れる物件
    わざわざ広告掲載しなくても、すぐに売れてしまう人気のある物件やお買い得な物件
  • 3値下げしている(予定)物件
    売主様から内々で値下げ情報を教えて頂いている物件
  • 4販売予定の物件
    これから販売を開始する物件で、まだ価格などの詳細が決まっていない物件
  • 5販売開始して間もない物件
    不動産ポータルサイトにまだ広告掲載が間に合っていない、これから掲載予定の物件

会員限定物件のメリットとは

  • 1競争率の低さ
    気に入った物件が既に成約済みだったということはよくある話です。しかし、会員限定物件情報なら、物件をお探しになっている弊社のお客様にいち早く新鮮な情報をお届けし、競争率の低い状態でご検討頂けます。
  • 2セミオーダー感覚に
    比較的、更地の状態である現地が多い為、フリープラン対応や間取りの変更、素材や色の選定などセミオーダー感覚の物件情報も多く含まれている為、家造りの楽しみの他、建築行程もお客様の目でご確認頂けます。
  • 3お好みの区画を選べる
    多棟現場の物件の場合には、情報が早いほどお好みの区画を選んでいただける可能性が高まります。

会員登録をしてメリット満載の会員限定物件情報を入手しましょう

メリット
2
値下げ物件、間取り図・写真など
特別情報を即座にお届け!

値下げ物件、間取り図・写真など特別情報を即座にお届け!

ご希望の物件情報を登録していただいた会員の方に、条件にマッチする新規物件が登録された際にメールでお知らせするシステムです。
また値下げ物件、ローンキャンセルの物件、図面・写真など、特別な情報も即座にお伝え致します。

メリット
3
物件簡単問合わせ

面倒な入力作業をすべて省略

住所や電話番号を登録しておけば、お問合わせの際に面倒な入力作業を省略することができます。
あわせて希望条件を入力していただければ、事前にあなたのご希望を把握した上で、ご連絡をさせて頂きます。

メリット
4
マイページ機能のご利用

ご希望条件の登録で、ご希望にマッチする物件数を瞬時に表示

マイページでは、お客様のお探し物件条件を登録しておくことができます。 条件を変更するとリアルタイムで瞬時に該当物件数が表示され、一覧表示も簡単です。
また、過去に閲覧・お問合わせした物件情報を閲覧・管理することができます。

会員登録をして理想のマイホーム生活に一歩近づきましょう

会員登録のメリットとは

員の方はこちら

 

着物件

コンサルタント

お客様の声

ライフラン

お金の専門家 ファイナンシャルプランナー 住宅ローン減税を活用した住宅ローンの組み方 ライフプランニングシート

お役立ちービス

ファイナンシャルプランニングサービス 無料売却査定 マンションカタログ

リアルートナーズ

部サイト

リクルート 株式会社マネぷら banner_reform イオン銀行住宅ローン